Дизайн

Современное, стильное, эргономичное и экологичное жильё.

Доставка

Доставка в любую локацию мира. Размещение на любой рельеф, площадку

Цена

Выгодные предложения для деловых людей. Бюджетные варианты домов, гостевых домов, гостиниц, и дач

Гостевой дом «Июль»

Небольшой уютный домик со всеми удобствами в живописном месте. Кто не мечтал о таком? Но не каждый знает, что осуществить свою мечту совсем несложно. Нужно выбрать и заказать разборный модуль гостевой дом «Июль» площадью 24 кв.м – лучший вариант для решения вопроса о возведении жилья. Всего за 8 часов вам соберут, установят и отделают из привезенных на двух грузовиках деталей прекрасное помещение для проживания и летом, и зимой.

Полезная площадь 24 м2

Полноценный санузел

Сборка от 8 часов

Поставьте на своем участке гостевой дом «Июль», поживите в нем – и вы полюбите его навсегда.

Дом предназначен для небольших семей. Здесь найдется место супругам и их ребенку. Все помещения компактны, но функциональны и удобны. Наши дизайнеры могут разработать для вас интерьеры комнат. Выберите и закажите понравившийся вам вариант - мы привезем комплект составляющих в указанное место, возведем в считанные часы уютное жилище, выполним качественную отделку, подключим электричество, воду, канализацию - можно вселяться.

Поскольку домик габаритный, его можно погрузить на подходящего размера транспорт и доставить в любую точку.

  • Размеры гостевого дома – 6 на 4,75 м.
  • Металлический каркас облегченный из швеллера 120, стойки – уголок 220х120.
  • Утеплитель зависит от назначения и использования: эконом вариант – пенопласт + 100 мм минеральной ваты. Если вы планируете оставаться в домике осенью и зимой, подойдет вариант – пенопласт и 150 мм минеральной ванты. Можно утеплить с помощью сендвич панелей (100-150 мм).
  • Обшивка на выбор: из сайдинга, профлиста или сендвич.
  • Дом оборудован теплым корейским полом.
  • Разводка электрики – обязательна во всех помещениях.
  • На кухне и в санузле делаем выводы под сантехнику
  • Устанавливаются пластиковые окна – 5 камер 32 пакет.
  • Входные двери утепленные, дух-контурные с терморазрывом.
  • Внутренняя отделка потолка выполняется по выбору заказчика. Вы можете заказать имитацию бруса, мдф или натяжной потолок.
  • Имеются гидро- пароизоляция и вентиляция.

Нами предлагаются на выбор три варианта планировки и комплектации при соблюдении общей площади 24 кв.м

Стоимость от:
1 560 000

Аренда от:
90 000 /месяц

Красивый компактный дом гармонирует с окружающей природой. Он хорошо смотрится и в парковой, и в лесной зоне, на берегу озера или реки. Домик очень функционален: в нем можно не только ночевать или укрываться от дождя. Он хорошо приспособлен для жизни в любое время года. На одной из стен закреплен навес, который легко откидывается, образуя тенистое, защищенное от солнца место. Поставив здесь кресло и столик, приятно будет выпить чашечку кофе, побеседовать с другом или почитать книгу. Для тех, кто хочет принять солнечную и воздушную ванну, есть прекрасная возможность позагорать – на крыше домика, куда ведет надежная и крепкая лестница. Здесь поместятся и кушетки, и зонтики, и кашпо с цветами. Рядом с домом будут прекрасно смотреться клумбы, газоны, дорожки, можно устроить место для шашлыков или площадку для игры в волейбол, теннис и пр. Не хуже строение выглядит в окружении зимней природы.

Планировки

Различные варианты комплектации и планировки позволяют выбрать модуль, подходящий именно Вам

Планировка №1

Гостиная с кухонной зоной (7,62 кв.м) – площадь небольшая, но здесь вполне умещаются и плита с раковиной, и холодильник, и обеденный стол с табуретами, и маленький диванчик. Две спальни: одна – побольше (6,36 кв.м) с двуспальной кроватью, вторая – поменьше (4 кв. м), где поместится лишь односпальная кровать. Стандартный санузел с душевым поддоном (2,69 кв.м) и маленькая прихожая (2,85 кв.м).

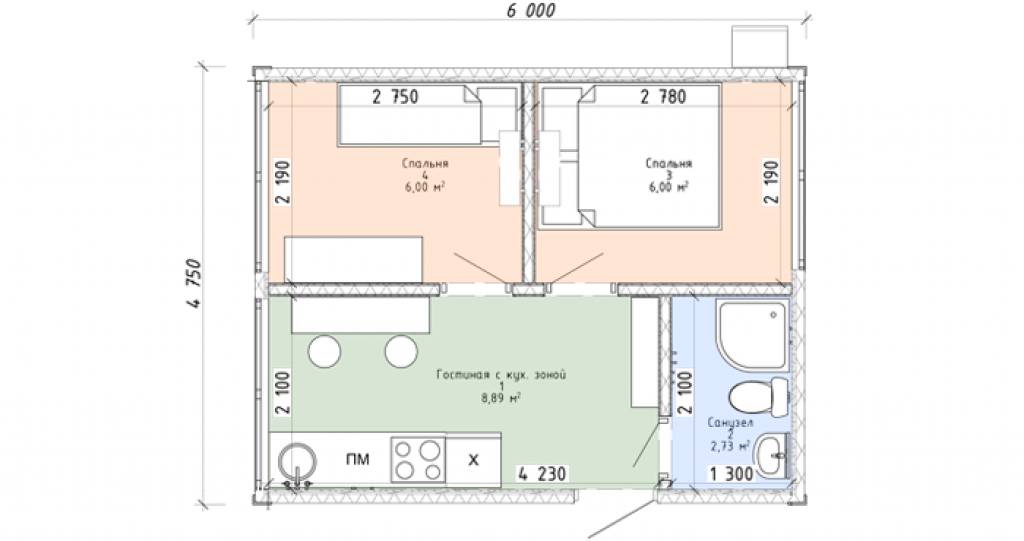
Планировка №2

Этот вариант без прихожей, за счет чего увеличивается площадь комнаты, вход ведет сразу в гостиную-кухню (8,89 кв.м). Она более просторная, чем в первом варианте, поэтому здесь можно выделить не только обеденную зону, но и место для отдыха. Две одинаковые спальни (6 кв.м) соседствуют с гостиной. Санузел (2,73 кв.м) оборудован душевой кабиной или поддоном, раковиной, унитазом.

Планировка №3

Планировка представляет три комнаты, прихожую, санузел. Гостиная с кухонным уголком (8,45 кв.м). Две одинаковые спаленки (5,45 кв.м) – маленькие, зато изолированные. Одна из них граничит с гостиной, другая – с прихожей (1,59 кв.м). Из прихожей можно пройти и в санузел (2,75 кв.м).

Внешняя отделка

Внешняя отделка модуля может быть подобрана исходя из Ваших пожеланий

Интерьеры

Современные, стильные, эргономичные