Дизайн

Современное, стильное, эргономичное и экологичное жильё.

Доставка

Доставка в любую локацию мира. Размещение на любой рельеф, площадку

Цена

Выгодные предложения для деловых людей. Бюджетные варианты домов, гостевых домов, гостиниц, и дач

Гостиница «Лето»

Вы решили открыть свое дело и заняться гостиничным бизнесом? Вам срочно нужно соорудить небольшой отель на приобретенном участке земли? Мы предлагаем наиболее оптимальный вариант, который устроит вас и по качеству, и по срочности возведения, и по цене. Это двухэтажная модульная гостиница «Лето», способная функционировать в любое время года. Готовые блоки доставляются и собираются на месте, подобно детскому конструктору из кубиков. В разобранном виде строение займет лишь несколько грузовых машин, сборка и установка происходит на отведенном месте.

Быстрый монтаж

Мобильность сооружения

Мы предлагаем два варианта двухэтажного здания гостиничного типа, которые различаются внешней отделкой, планировкой и интерьерами помещений. Каждый этаж площадью около 100 кв. м., состоит из восьми блоков. Каждый номер имеет отдельный вход, запирающийся на замок. Второй этаж опоясан единым балконом, через который осуществляется вход в номера.

  • Каркас облегченный из швеллера 120, стойки уголок 220х120. Цвет каркаса – графит или белый (по выбору).
  • Утеплитель зависит от назначения и использования: эконом вариант – пенопласт + 100 мм минеральной ваты, более теплые – 150 мм минеральной ваты. Есть вариант из сендвич панелей 100-150 мм.
  • Обшивка из сайдинга: RAL 9003 (белый), RAL 7024 (графит), или RAL 9016 (белый ), RAL 3004 (рубиново-красный ), или RAL 8001 (охра коричневая ) , RAL 7024 (графит ).
  • Теплый корейский пол.
  • Разводка электрики обязательна в каждом помещении.
  • Выводы под сантехнику в санузлах и кухонных помещениях.
  • Окна пластиковые 5 камер 32 пакет.
  • Двери утепленные.
  • Внутренняя отделка потолка имитация бруса, мдф или натяжной потолок.
  • Гидро- пароизоляция и вентиляция.

Наши модульные гостиницы органично вписываются практически влюбой окружающий ландшафт.

Кровля функциональна, при необходимости играет роль площадки для принятия воздушных и солнечных ванн. Здесь размещаются кушетки для загорания и отдыха, зонтики, создающие тень от солнца. Отсюда открывается великолепный вид на живописные окрестности. На крышу ведет прочная и безопасная лестница. Поставленная на берегу водоема или в лесной зоне гостиница станет прекрасной базой отдыха для нескольких семей.

Итак, вы решили возвести гостиничное строение. Вам просто необходимо обратиться на наш сайт. Здесь вы найдете фотографии нескольких вариантов комплектации и планировки зданий, их внешней отделки. Выбрав понравившуюся модель, оставьте заявку на сайте или позвоните по указанным контактным номерам: наши сотрудники перезвонят вам и уточнят все детали. Закажите модульное здание гостиницы – дальше дело в свои руки возьмем мы: привезем все необходимые детали, быстро и аккуратно соберем и установим модули. Пройдет всего несколько дней – и ваш отель уже сможет принимать гостей.

Планировки

Различные варианты комплектации и планировки позволяют выбрать модуль, подходящий именно Вам

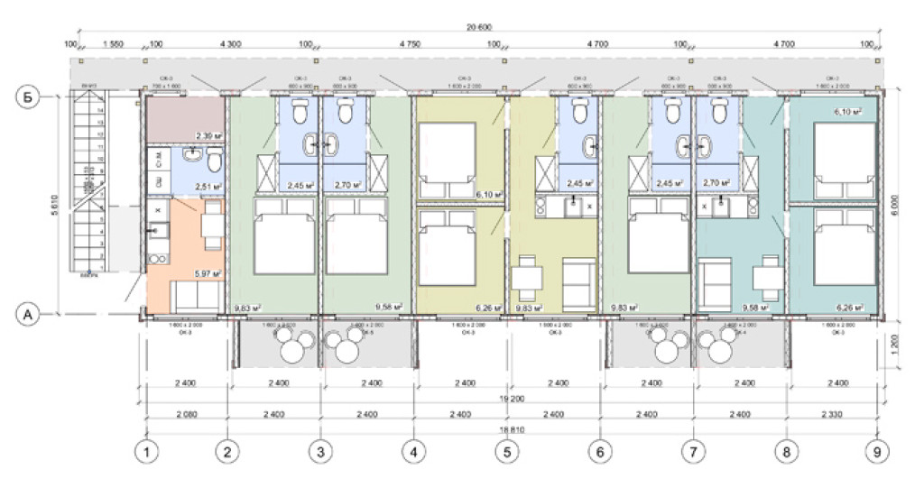
Вариант 1. Этаж 1.

5 номеров, из них 3 двухместных и 2 четырехместных. Номера оборудованы двуспальными кроватями, диванчиком, столиком со стульями, в каждом есть свой санузел, в некоторых предусмотрены кухонные блоки. Из каждого номера выход на террасу, где можно установить кресла для отдыха. На этаже предусмотрено помещение под ресепшен. Есть небольшая кладовка для инструментов и служебный туалет.

Вариант 1. Этаж 2.

5 номеров: 3 четырехместных и 2 двухместных с соответствующими санузлами. В номерах – комфортная новая мебель: двуспальные кровати, стол со стульями; в четырехместных предусмотрены диван, шкаф. На каждом этаже из комнат предусмотрены выходы на лоджии, где стоят столики и стулья, предназначенные для чаепития и отдыха.

Вариант 2. Этаж 1.

5 номеров: 3 двухместных, 2 четырехместных. В каждом номере установлена необходимая для отдыха мебель: двуспальные кровати, стол, стулья; в четырехместном есть диван. Здесь же предусмотрена комната для персонала, небольшая хозяйственная комната, служебный санузел. Из номеров есть выход на небольшую террасу, оборудованную для отдыха и чаепития.

Вариант 2. Этаж 2.

2 двухместных и 3 четырехместных. В номерах комфортные двуспальные кровати, шкаф, стол со стульями, диванчик. В некоторых предусмотрено кухонное оборудование. Обязательно в каждом номере есть санузел. Выход из номера на небольшой балкончик, где можно отдохнуть на свежем воздухе.

Внешняя отделка

Внешняя отделка модуля может быть подобрана исходя из Ваших пожеланий